Residential, Lifestyle, Rural and Commercial Property
3 Beds 1 Bath Approx 187 Acres 4 car spaces

VERSATILE FARMING

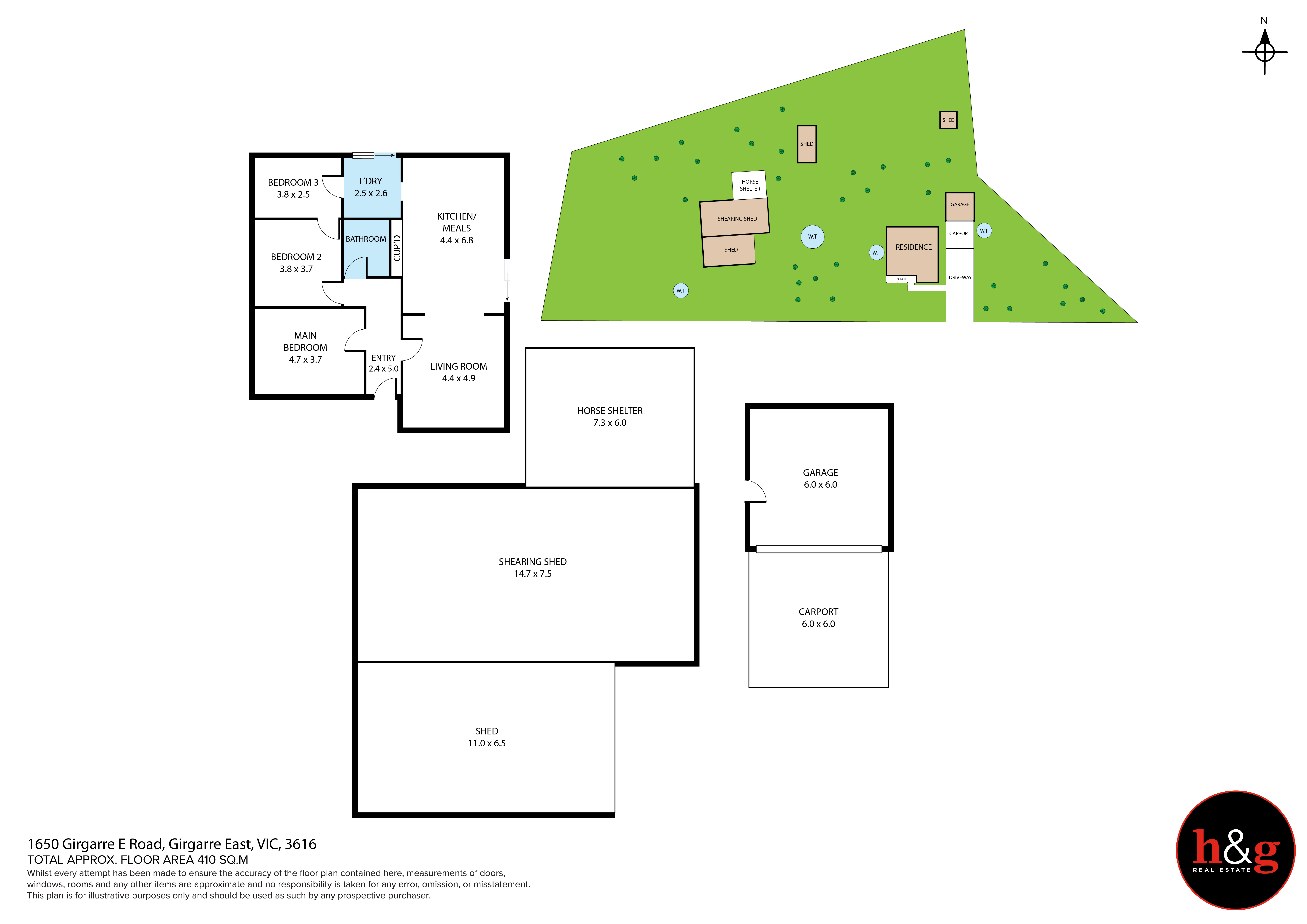
This property encompasses 187 acres of gently rolling land, divided into two separate titles. It is serviced by one main access point and features 20 acres that have been set up for irrigation, supported by a 1.74ML D/S.

Shearing and Storage Facilities:
A three stand shearing shed, maintained in very good condition, is located on the property. Next to the shearing shed is a spacious machinery or hay shed, offering ample space for equipment and fodder storage.

Equine and Livestock Infrastructure:
There are three dedicated horse day paddocks, all equipped with quality fencing and reliable water supply. The property also features cattle yards, a Norton crush, and a loading ramp, making livestock handling efficient and safe.

Land Use and Potential:
With its versatile layout and infrastructure, the property is suitable for grazing, cropping, and fodder production. It presents an ideal opportunity for those looking to begin or expand their rural portfolio.

Residence:
The property includes a cosy 3BR home with electric cooking, reverse cycle heating and cooling, wood fire and complete with a double carport. Adjacent to the house is a lockable shed with a concrete floor and power, providing additional storage and versatility.

Contact Phil for more information 0437 276268.

Disclaimer:
Whilst we endeavour to represent this property information to the best of our knowledge and have no reason to doubt any inaccuracy, this information has been provided to us by the vendor and we therefore accept no responsibility and disclaim all liability in respect to any errors, omissions, inaccuracies or misstatements in any information.
We encourage buyers to make their own enquiries and refer you to the due diligence checklist provided by Consumer Affairs for further information:
http://www.consumer.vic.gov.au/duediligencechecklist

Heating & Cooling

  • Open Fireplace
  • Split-System Air Conditioning
  • Split-System Heating

Outdoor Features

  • Shed

Indoor Features

  • Dishwasher

Eco Friendly Features

  • Water Tank

Location

2017 - 2026 | H&G Real Estate , All Rights Reserved | Privacy Policy. Powered by Eagle Software