Residential, Lifestyle, Rural and Commercial Property
4 Beds 1 Bath Approx 1015 m2 3 car spaces

The Only One In Town

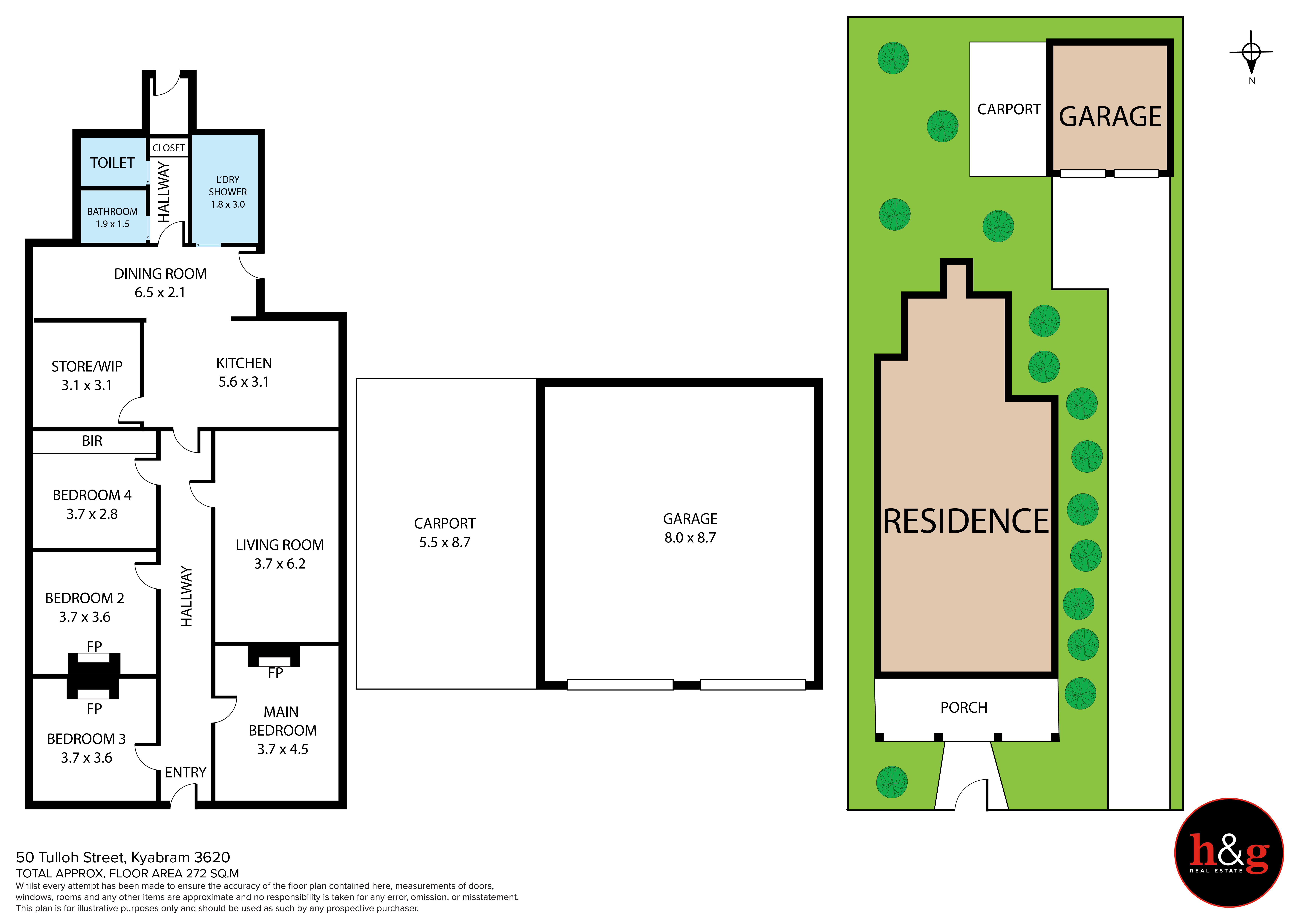
50 Tulloh St Kyabram is a unique property. Well maintained through the years and just a stroll to the CBD and St Augustine's College, "Rosscor" is a solid brick home sitting on a 1015m2 block right in the heart of Kyabram.
The original part of the home features 12ft (3.6m) high Baltic pine ceilings, reverse cycle central A/C and evaporative cooling. There are 4 large bedrooms in the home, 3 of which have their own open fireplaces, adding to the charm of the property. The kitchen has been modernised with great storage, gas cooktop and electric oven. Leading from the kitchen is the old dry store which is being used as formal dining but could easily be used as an office or even a dry store again.
The position of the house on the block means the driveway heads all the way down to the open carport (5.5m x 8.7m) and brick double garage (8m x 8.7m). This is all framed with classic Australian garden style, a great mixture of natives, roses and even an orange tree.
This property has a lot to offer, an inspection is a must to appreciate.

Disclaimer:
Whilst we endeavour to represent this property information to the best of our knowledge and have no reason to doubt any inaccuracy, this information has been provided to us by the vendor and we therefore accept no responsibility and disclaim all liability in respect to any errors, omissions, inaccuracies or misstatements in any information.
We encourage buyers to make their own enquiries and refer you to the due diligence checklist provided by Consumer Affairs for further information:
http://www.consumer.vic.gov.au/duediligencechecklist

Heating & Cooling

  • Air Conditioning
  • Evaporative Cooling
  • Split-System Air Conditioning
  • Split-System Heating

Outdoor Features

  • Fully Fenced

Indoor Features

  • Built-in Wardrobes
  • Dishwasher

Eco Friendly Features

  • Solar Panels

Location

2017 - 2026 | H&G Real Estate , All Rights Reserved | Privacy Policy. Powered by Eagle Software